网站首页 美食营养 游戏数码 手工爱好 生活家居 健康养生 运动户外 职场理财 情感交际 母婴教育 生活知识 生活百科 知识问答 更多知识

低压配电网三相不平衡监测装置

时间:2026-02-15 15:52:08

1、    电压是衡量供电质量的一项重要指标,电压质量是关系到百姓“用好电”、“电好用”的民生问题。随着近年来经济的高速发展,用电负荷急剧增加,在部分配电台区存在着线路损耗严重、电压低、三相不平衡等问题,严重影响了用户的正常用电。

低压配电网三相不平衡监测装置

2、     特别是近年来“城中村”和城乡结合部经济建设高速发展,大量新增的混合用电性质负荷导致了损耗直线上升,给供电公司带来了严峻的考验。针对上述情况,特力康研究了既适合三相三线制接线形式又适合三相四线制接线形式的低压配电网三相不平衡监测装置,以解决自动调整配电变压器有功电流不平衡的难题。

1、     低压配电网三相不平衡监测装置(TLKS-PLAI)是一种用于动态治理配网三相不平衡和补偿无功新型电力电子装置,它能够根据配网用户由于不同时间段或不同负荷导致配网三相不平衡电流,利用先进控制算法分离出不平衡电流的正负零序及无功和谐波电流,通过触发功率器件IGBT,使逆变器发出与之相反的抵消电流,达到消除不平衡及补偿无功和谐波治理的作用。

2、三相不平衡补偿原理

     内部控制器实时检测负载电流,计算分析负载电流并判断系统是否处于不平衡状态,采用先进控制算法分离出不平衡电流的正序分量、负序分量和零序分量,然后控制器实时驱动IGBT,STUR发出与负序分量和零序分量反向的电流,最后电网侧电流达到三相平衡状态。

低压配电网三相不平衡监测装置

3、无功补偿原理

     内部控制器实时检测负载电流,计算分析得到负载电流的无功电流;无功电流作为控制器的参考值,控制器实时驱动IGBT产生满足要求的无功补偿电流(容性或感性),最终实现动态无功补偿目的。

1、◆智能化控制,设备免调试;

◆内部模块采用插拔方式,实现柱上维护;

◆模块并联运行,简单实现设备扩容;

◆多倍零线补偿能力,消除零线电流,降低线损。

◆换相功能:5ms内快速换相,不影响连续供电和用电;

◆数值显示:单相电压、电流,功率因数,不平衡度,换相时间,换相次数,日历;

◆保护功能:剩余电流动作保护功能,过载保护功能,过热、短路保护功能,欠、过压保护功能,突变保护功能;

◆采用过零换相技术,换相时间最大10ms,能够避免在负荷投切瞬间产生的较大涌流,避免对用户的用电设备产生影响;

◆台区最优配置计算:可根据台区用户情况,容载比对台区内需安装的DUS数量进行最优计算,计算调整负荷三相不平衡所需的最少设备数量,减少设备投资,使装置经济效益达到最大化;

◆采用高速数字信号处理器(DSP)和阀触发系统,结合先进的控制策略,根据负荷特性实时、智能调节各组换相开关组合,快速平衡负荷,达到最优控制结果;

◆可扩展可重构:各换相开关与主控系统通过GPRS无线通讯进行数据交换,根据负荷的增减,对换相开关进行扩展和重构;

◆安装方式灵活:可适应室内、室外、壁挂、柱上等多种安装方式。

低压配电网三相不平衡监测装置

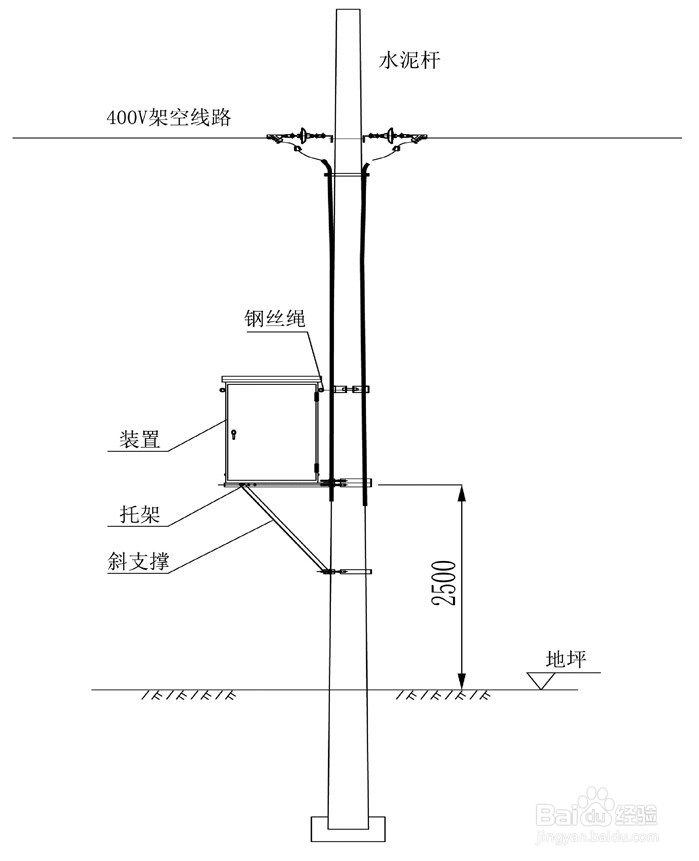
1、     装置可以安装在配电间内、箱变旁、或用支架安装在变压器台下面的电线杆上,当变压器台上有空闲位置时,也可以直接安装在变压器台上。为便于操作与维修,机柜前后要留有(≥1米)足够空间。

低压配电网三相不平衡监测装置

低压配电网三相不平衡监测装置

1、      电网系统中的三相不平衡问题一直是供电公司的难题,三相不平衡常常会增加电网系统线路、配电变压器的电能损耗,使配变产生零序电流,对整个电网的安全稳定运行具有较大的影响,同时电气设备在此状态下运行也是非常不经济和不安全的,特力康低压配电网三相不平衡监测装置可及时补偿系统三相不平衡电流和无功,进行调节改变单相用户相序,有效治理电网系统三相电流不平衡状况,优化电能质量。

低压配电网三相不平衡监测装置

© 2026 一点知道
信息来自网络 所有数据仅供参考
有疑问请联系站长 site.kefu@gmail.com